Centenary Heights Real Estate

powered by Open2view.com
SOLD

Adelaide
3
2
N/A
250sqm
1683sqm
Adelaide
proudly marketed by
Alexander Zadow
Harcourts Sheppard
Big House, Big Land, Big Value Here.
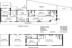
Big House, Big Land, Big Value Here. Adelaide hills haven so private & peaceful. What a fantastic property this is only 10 minutes from Burnside Village and about the same to the main street of Stirling with stunning manicured gardens featuring secluded pathways and hidden seating areas making it a full time adventure for the kids but a place of relaxation and socialising for the adults. This spacious 1683sqm (approx) private allotment has plenty of flat land with a lovely lawned area perfect for Fido and somewhere for the kids to kick a ball. The house itself is large, 250sqm (approx) spread over two levels. Enjoying an elevated North Western aspect, the twinkling city lights can be seen through the tree tops at night reminding you the City centre is only a short drive away. An easy set of stairs take you to the upper level with full length balcony, plenty of picture windows and several sets of sliding doors. The living room with combustion wood fire is spacious and leads through to the kitchen with stainless steel 900mm oven and dishwasher adjacent the tiled meals area. This upper level also features the three bedrooms all with built in robes, the master with renovated ensuite while the main bathroom has also been renovated. Downstairs is just as spacious as upstairs. A huge rumpus room with wet bar the size of a kitchen and combustion wood fire enables many options. Perfect as it is and ideal for the kids to call their own or convert this space into a self contained level ideal for the grandparents or when guests come to stay. A separate entry from the auto double garage leads through a study room with built in desk units which then leads through to the rumpus room. The laundry and third toilet are also located on this level. Outdoor entertaining will be a pleasure all year round with a large covered pitched roof pergola surrounded by flowering camellias and shade loving plants. A great place to sit and relax come rain or shine. Desirable extras include 3 split system air conditioners, automatic garden irrigation, toolsheds, raised vegie garden, outdoor window shade awnings and 80,000 litre (approx) concrete rainwater tank with additional connection to the Greenhill Water Supply ensuring an unlimited water supply with no water restrictions applying to this suburb. Greenhill is a tightly held suburb only 10 minutes to Burnside and about the same to Stirling. It enjoys the convenience of public transport, a new adventure playground for the kids to enjoy and community tennis courts with some of the best views of the City centre I've seen. A country feel with its abundant wildlife and visiting koalas, yet the convenience of the City and suburbs are just minutes away. This is a rare opportunity to buy into the Eastern foothills for a fraction of the price you'll pay in adjacent Burnside for a comparable level of accommodation. An absolute pleasure to present with your viewing highly recommended. Price Guide: $500,000 - $540,000. Alexander Zadow - 0413 700 631 Your Greenhill Specialist RLA 200675 For a FREE no obligation appraisal of your home or investment property please contact me anytime on 0413 700 631 OR view my website: www.alexanderzadow.brockharcourts.com.au to see other homes for sale, sold properties in any suburb, selling tips and community information.
Question
Upload by Erin Beare
Burnside-Norwood